JavaScript is required to view this page.
Cazan IBC cu gazificare pe lemne GK-7k-Öko – Eficient & Ecologic | Magazin GEMA

Telefon +49(0)39262 878720

E-mail: gemashop@gema-net.de

WhatsApp: +49(0)17660429928

  • livrare rapida

  • Ajutor și sfaturi gratuite

  • Retururi fără probleme

  • Deschis 7 zile pe săptămână

Anhaltinerring 17, 39439 Güsten

Deschis L-Jo 7:00-17:00; vineri 7:00-16:00; Sâmbătă 9:00-12:00

IBC  |  SKU: IBCGK730

Cazan IBC cu gazificare pe lemne GK-7k-Öko – cazan din fontă eficient & ecologic 🌲🔥

Pret normal 46.418,00 lei
tVA inclus. Expediere va fi facturat la finalizarea comenzii.


Livrare și expediere

Timpul de procesare este de obicei de 1 zi lucrătoare. Livrarea coletelor este de 1-3 zile lucrătoare. Pentru expedierea de mărfuri, timpul de livrare este de 3-5 zile lucrătoare. Timpii de livrare în afara Germaniei variază.

Beschreibung

Cazan IBC cu gazificare pe lemne GK-7k-öko – Încălzire eficientă și ecologică

Cel/Cea/Cei/Cele Cazane din fontă Centrala termică pe lemne IBC GK-7k-öko este soluția ideală pentru încălzirea ecologică și rentabilă cu lemne. Dotată cu o tehnologie de gazificare a lemnelor de ultimă generație, acest model combină eficiența energetică, durabilitatea și compatibilitatea ridicată cu mediul. Este perfectă pentru gospodăriile care doresc să își reducă costurile de încălzire, contribuind în același timp la protejarea climei.

Tehnologie eficientă de gazificare a lemnului

Cel/Cea/Cei/Cele Cazane din fontă se bazează pe o tehnologie inovatoare de gazificare a lemnului, care permite o utilizare deosebit de eficientă a combustibilului. Lemnul este mai întâi gazificat într-o cameră de ardere specială, înainte ca gazele rezultate să fie arse complet într-un al doilea proces. Această ardere în două etape nu numai că asigură un randament energetic mai mare, dar minimizează și emisiile.

Datorită eficienței sale ridicate, puteți obține o putere termică constantă și fiabilă chiar și cu un consum redus de lemne. IBC-ul Cazane din fontă Prin urmare, GK-7k-öko este o soluție de încălzire eficientă din punct de vedere energetic și sustenabilă.

Prietenos cu mediul și emisii reduse

Un avantaj cheie al cazanului IBC cu gazificare pe lemne este emisiile sale reduse. Tehnologia eficientă de ardere minimizează particulele de funingine și alte gaze de eșapament. Aceasta înseamnă că centrala îndeplinește cele mai stricte standarde de mediu și este ideală pentru utilizatorii preocupați de mediu.

În plus, lemnul este o resursă regenerabilă care arde neutru din punct de vedere al emisiilor de CO₂. Acest lucru face ca centrala termică cu gazificare a lemnului IBC GK-7k-öko să fie o alternativă sustenabilă la combustibilii fosili, cum ar fi petrolul sau gazul.

Design compact și instalare ușoară

Datorită designului său compact, GK-7k-öko economisește spațiu și este ușor de instalat. Centrala termică se integrează ușor în orice sistem de încălzire și poate fi integrată perfect în sistemele existente. Construcția sa asigură utilizarea optimă chiar și a camerelor centralelor termice mai mici.

În plus, efortul de instalare este minim, așa că chiar și utilizatorii mai puțin pricepuți din punct de vedere tehnic beneficiază de o instalare fără probleme. O interfață ușor de utilizat simplifică controlul și monitorizarea dispozitivului.

Durabilitate ridicată și materiale robuste

Cel/Cea/Cei/Cele Cazane din fontă Cazanul de gazificare pe lemne IBC GK-7k-öko este construit din materiale durabile și de înaltă calitate, care asigură o durată lungă de viață. Componentele rezistente la căldură și coroziune asigură o funcționare fiabilă chiar și în condiții de utilizare intensivă timp de mulți ani.

Designul sofisticat și construcția robustă fac din centrală o investiție profitabilă pe termen lung. Datorită durabilității sale, costurile de întreținere rămân gestionabile, iar utilizatorii se pot baza pe performanțe ridicate constante.

Curățare și întreținere ușoară

Un alt avantaj al cazanului IBC cu gazificare pe lemne este ușurința în curățare și întreținere. Cazanul este proiectat astfel încât reziduurile și cenușa să poată fi îndepărtate rapid și fără efort. Intervalele regulate de întreținere sunt simple, economisind timp și efort.

Datorită designului său optimizat, eficiența cazanului rămâne constant ridicată în timp, în timp ce costurile de operare rămân scăzute. Acest lucru face ca centrala IBC cu gazificare pe lemne să fie deosebit de ușor de utilizat și potrivită pentru utilizarea zilnică.

Concluzie: O soluție de încălzire economică și sustenabilă

Cazanul IBC pe lemne cu gazificare GK-7k-öko impresionează prin eficiența energetică, respectul pentru mediu și durabilitatea.Tehnologia sa inovatoare de gazificare a lemnului asigură o putere termică optimă cu un consum minim de combustibil și emisii reduse. Designul său compact și ușurința în utilizare îl fac alegerea ideală pentru orice gospodărie care apreciază sustenabilitatea și rentabilitatea.

Durată de viață extrem de lungă datorită construcției cu legături turnate.

Decideți împreună cu IBC-ul Cazane din fontă GK-7k-öko pentru o soluție de încălzire pregătită pentru viitor, care vă garantează căldură de lungă durată și costuri de operare reduse.

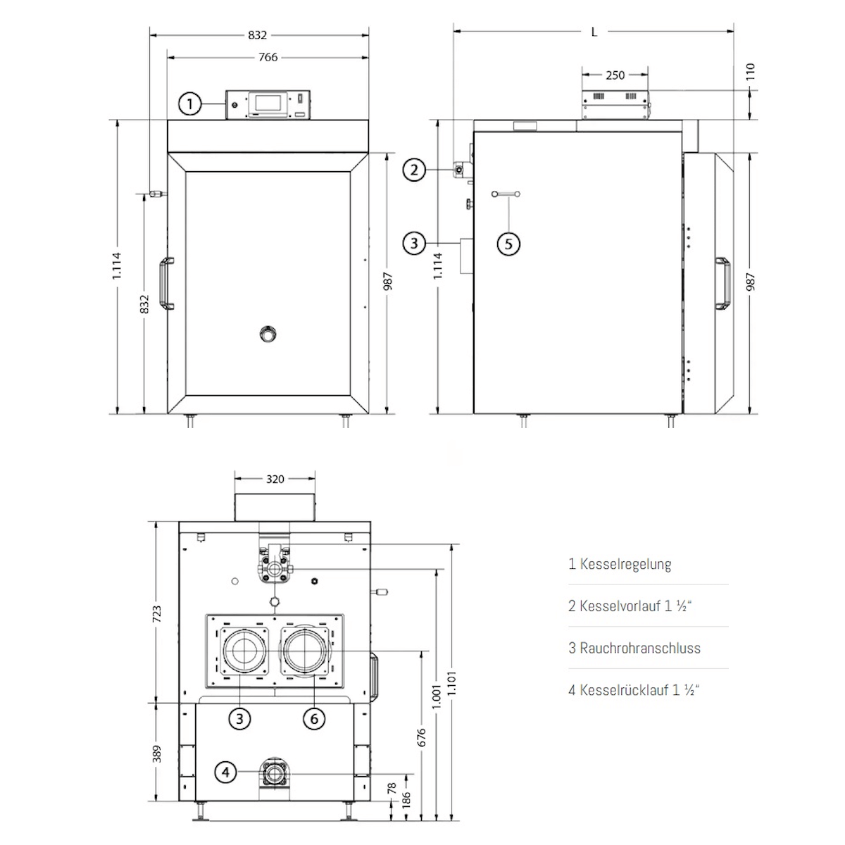
Date tehnice

  • Putere termică nominală 30 kW
  • Număr de legături 6
  • Volumul camerei de umplere 120 litri
  • Eficiență 91,44%
  • Greutate 700 kg
  • Dimensiunile cazanului cu înveliș (ÎxLxA) 1.224 x 832 x 1.205 mm
  • Dimensiunile corpului turnat al cazanului (ÎxLxA) 980 x 650 x 1.061 mm
  • Deschiderea ușii camerei de ardere (l x Î) 476 x 254 mm
  • Adâncimea camerei de ardere 550 mm
  • Pre-conectarea cazanului &Return 1 1/2"
  • Racord conductă de evacuare 160 mm
  • Presiune de funcționare admisă 3 bar
  • temperatură maximă de funcționare 100 °C
  • temperatură minimă pe retur &>55 °C
  • Temperatura gazelor de eșapament 160 - 180 °C
  • Debitul masic al gazelor de eșapament 17,15 g/s
  • presiune de livrare necesară 10 Pa

Domeniul de livrare

  • Cazan din fontă IBC GK-7k-eko 30 kW
  • Modul de internet integrat cu utilizare gratuită a aplicației
  • Asamblare &și instrucțiuni de utilizare

plată & Securitate

Opțiuni de plată

  • American Express
  • Apple Pay
  • Bancontact
  • BLIK
  • EPS
  • Google Pay
  • iDEAL
  • Klarna
  • Maestro
  • Mastercard
  • MobilePay
  • PayPal
  • Przelewy24
  • Shop Pay
  • Union Pay
  • Visa

Informațiile dumneavoastră de plată sunt procesate în siguranță. Nu stocăm și nu accesăm informațiile cardului dumneavoastră de credit.

Recenzii ale clienților

Fii primul care scrie o recenzie
0%
(0)
0%
(0)
0%
(0)
0%
(0)
0%
(0)

Contactaţi-ne

reviews
See all reviews